Direkt zum Seiteninhalt

HNO-Praxis Nidwalden - Marcel Baechler - Innenarchitektur, Architektur & Praxisplanung

HNO-Praxis Nidwalden, Stans

Bauherr: Fachärztin Julia-Franziska Vogt
Realisierung: 2025
Auftragsart: Direktauftrag

Innenarchitektur:
Marcel Baechler, Innenarchitekt vsi.asai. REG B
Noëlle Baechler, Architektin MSc ETH
Bauleitung: Marco Fehlmann, Fehlmann & Partner GmbH

Wer weisse Wände baut, soll auch den Mut zur Farbe haben." von Marcel Baechler
Innenarchitektur im Gesundheitswesen bedeutet heute weit mehr als reine Funktionalität. Die neue HNO-Praxis in Stans NW zeigt exemplarisch, wie Farben, Materialien und klare Strukturen Räume entstehen lassen, die medizinische Präzision mit menschlicher Nähe verbinden. Ziel der Neugestaltung war es, eine Atmosphäre zu schaffen, die sowohl Patienten als auch das Praxisteam anspricht und unterstützt.

Das Farbkonzept lebt von bewusst gesetzten Kontrasten, die die eher kleinen Räume optisch weiten. Akzentwände in "Ocre Rouge“ bringen Wärme und Energie, während helle Flächen in "Porzellan Weiss“ für Leichtigkeit und Offenheit sorgen. Möbelfronten in tiefem Agavengrün verstärken die ruhige, seriöse Wirkung der Praxis. Ergänzt durch ein speziell entwickeltes Eichenvinyl-Design entsteht ein wohnlicher Charakter, der die funktionalen Anforderungen angenehm einbettet.

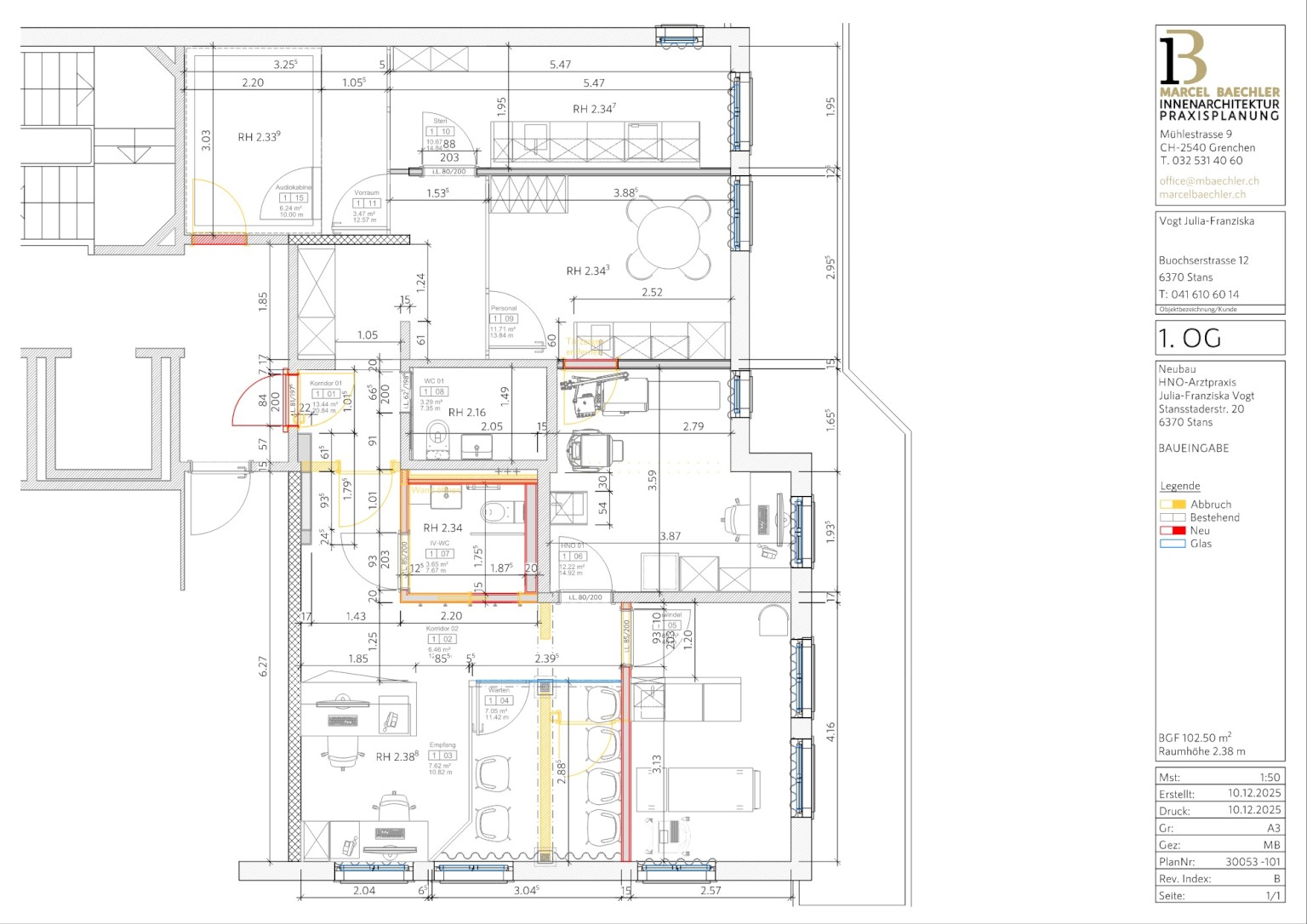
Eine der grössten Herausforderungen dieses Projekts war der Zeitrahmen. Die Auftraggeberin musste die bestehende Praxis bis vor Weihnachten 2025 verlassen. Geeignete Räumlichkeiten in dieser kurzen Zeit zu finden, erwies sich als anspruchsvoll. Ab dem Frühling 2025 wurden zahlreiche Objekte besichtigt, viele davon jedoch zu klein oder zu gross. Anschliessend bei verschiedenen Objekten Massaufnahmen, Layoutplanungen und Kostenschätzungen. Als schliesslich passende Räume gefunden waren, war der Zeitplan bereits stark fortgeschritten, sodass der Planungsstart erst im September 2025 erfolgen konnte. Dies war auch für die beteiligten Unternehmer äusserst sportlich, da diese zu diesem Zeitpunkt vielfach bereits bis Jahresende ausgebucht waren.

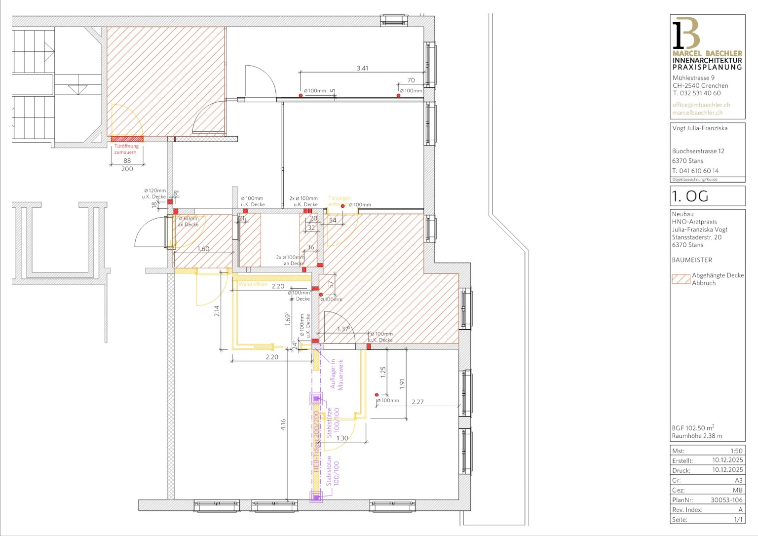
Dank unseres eingespielten Netzwerks gelang dennoch der Spagat zwischen "fliegender" Planung und Baubeginn. Das Bauamt Stans begleitete das Projekt von Beginn an konstruktiv, wodurch das Baugesuch bewusst schlank gehalten werden konnte. Mit dem Vertrauen aller Beteiligten und einer Auftraggeberin, die das mutige Farbkonzept von Anfang an mitgetragen hat, konnte der Umbau eines ehemaligen Büros – inklusive der Anpassung einer tragenden Wand – innerhalb von sieben Wochen erfolgreich realisiert werden.

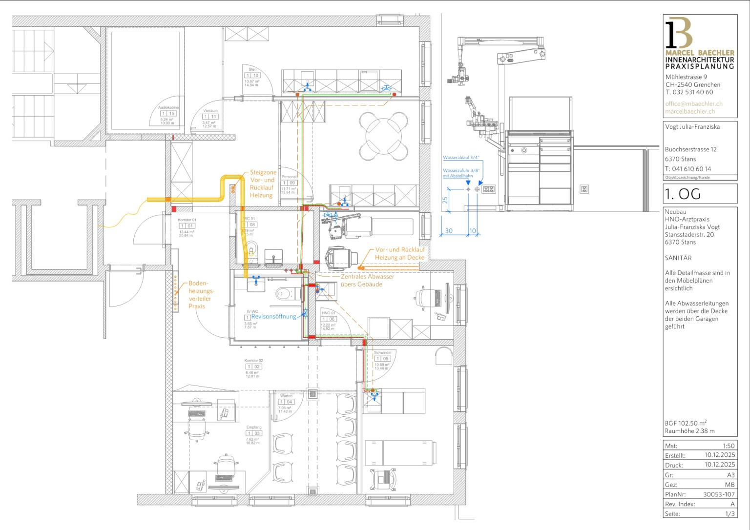
In diesem Projekt waren wir verantwortlich für die gesamte Entwurfs- und Ausführungsplanung sowie für die Sanitär- und Elektroplanung inklusive Oberbauleitung.

hno-nidwalden.ch                              
Visualisierung | Realitätsfoto (Schieber nach Links und Rechts bewegen)
Line
Zurück zum Seiteninhalt